back to: workplace

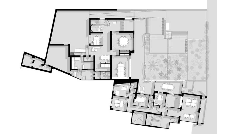
IDS & Unitelm Offices

Messina

The office no longer just as a workplace, but also as a context for living and relationships.

A project within a historical context that takes into account the transition of the world of work and the digital evolution of spaces with the creation of multifunctional, flexible and modular areas and with the enhancement of outdoor environments for greater well-being: technology and nature dialogue harmoniously with a view to human centerd design​.